60x60ft (18x18m) Double Truss Industrial Grade Dome.
Designed for large-scale projects requiring an expansive undercover area of 324m2, with a high front and rear roof clearance for easy access.
Create the extra space your projects demand with this Industrial Grade 60x60ft (18x18m) double truss container dome shelter, complete with super-tough 900GSM, UV Resistant PVC Fabric Roof Cover.
This shelter can be mounted on 3 x 20ft, 1 x 40ft and 1 x 20ft container setups. Multiple combinations of shipping containers can be used, as well as stacked containers for a truly expansive undercover workspace. The roof trusses are connected to the outside edge of the containers, therefore there is some loss of ground/floor space between the containers, although the benefit is undercover storage areas on top of the containers become available. This is the perfect location to store palletised goods and equipment away from ground level.
The 60ftx60ft shelter can be attached to General Purpose (GP) and High Cube (HC or HQ) containers, making it a versatile solution for large-scale projects.
With 18m wide front and rear exits and a dome height of 6.1m (floor to ceiling clearance of 8.7m on a GP container) this large structure is perfect for those bigger projects requiring light vehicle and heavy machinery access and mass shelving and racking systems.
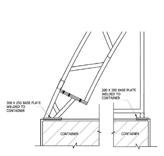
This shelter is built tough, featuring double truss arches, with each truss segment securely bolted to one another using a robust centre plate connector. To connect the truss to the container, specially manufactured base plates are welded to the outside edge of the containers. Roof truss connection spigots securely connect the roof truss to the base plate. For additional strength, truss support posts are also welded into position and connected to the truss above. The entire roof structure is connected using a series of heavy-duty purlins, side and top bracing purlings, and tension wire for additional strength.
Shelter Dimensions
| L (m) | W (m) | H (m) |
|---|---|---|
| 60 | 60 | 6.1 |
Packing Crate Dimensions
Crate 1 (1640kg)
| L (m) | W (m) | H (m) |
|---|---|---|
| 3.33 | 1.10 | 1.12 |
Crate 2 (1270kg)
| L (m) | W (m) | H (m) |
|---|---|---|
| 3.33 | 1.10 | 1.16 |
Total crate volume. Crate 1. 4.10m3 Crate 2. 4.25m3
Total crate volume: 8.35m3
Total weight: 2.91 tonne
Features
- Engineered base plates for precision assembly
- Welded connections for strong foundation
- Double truss design, engineered for Australian conditions
- Truss segment connection via an inline centre block plate
- Extra heavy-duty UV protected 900GSM roof cover
- Extra strength double truss dome arch trusses with engineered centre plate connections (trusses not joined on the round tube)
- Designed and developed for enduring strength and resilience
Double Truss Dome Design
- Enhanced Structural Integrity: Our double truss frame design in this 60x60ft / 18x18m shelter equates to superior strength and stability, capable of withstanding harsh weather conditions including high winds, extreme temperatures and even heavy snow.
- High Load Bearing Capacity: Specifically engineered to handle significant loads, our double truss structural design provides additional roof strength to protect expensive heavy equipment and materials stored underneath.
- Durability and Corrosion Resistance: Constructed from high-grade, corrosion-resistant, jot-dip galvanised steel, this shelter has been engineered for longevity, minimal maintenance and upkeep, even in challenging environmental conditions and locations.
- Customisable and Modular Design: We can advise on and supply a range of shelter configurations to suit your site requirements, including various sizes, the addition of full or half front and end walls. Ventilation systems can be installed to create a temperature controlled space to suit the most demanding of project requirements.
- Cost-Effective Long-Term Solution: While providing immediate protection and operational continuity, the durable and low-maintenance nature of this trussed frame dome shelter represents a cost-effective investment over time, with financial benefits extending far beyond the initial setup.
Why Choose a 60x60ft Industrial Grade Dome Shelter?
Simple and Straightforward Assembly
Given the size and scale of this structure, following the assembly instructions makes constructing this shelter relatively straightforward. A minimal assortment of tools and equipment is required, making modular kit shelters the perfect choice for quick operational start-ups, even in remote locations. Of course, the span and weight of double truss structures means additional equipment and lifting gear is essential on site.
Modular and Scalable Design
Tailored to meet the requirements of large commercial and industrial projects, the modular design allows the structure to be assembled using a combination of 40ft and 20ft containers, aligned in whatever configuration that is available. Dome shelters can be often classed as semi-permanent structures because as well as being straight forward to assemble, the process of disassembly and relocation makes then the perfect solution for expanding work sites. This offers huge financial benefits and cost savings for engineering project coordinators, managers and engineers who are looking for longevity, portability and best value for money. When multiple projects are rolling out one after the other, the ease of portability means this shelter will pay for itself several times over.
Comprehensive Protection
Utilising a combination of 40ft and 20ft shipping containers as a sturdy base, this large domed shelter provides secure storage for construction supplies to heavy machinery, equipment, and even livestock.
Protect anything of value from the damaging effects of weathering. Our shelters serve as sheltered offices, storage facilities, mess areas and extended work spaces, ensuring your site operations are unaffected by external weather events, thereby minimising downtime and allowing the continuance of project timelines.
Enduring Protection
- Energy Efficiency:
- The insulation properties of the 900GSM PVC roof cover also helps improve the building’s overall energy efficiency.
- Sustainability and Recyclability:
- PVC roofs have a long lifespan, reducing the need for frequent replacements and minimising waste.
- PVC is a 100% recyclable material, and many PVC roofs incorporate recycled content. This contributes to a more circular economy.
- The entire shelter can be dismantled and reused in another location, thereby minimising waste.
Eco-Friendly and Cost-Effective
Beyond offering immediate operational benefits, our Dome Shelters are an investment in sustainability and improve the efficiency of your operations. The use of recyclable materials, energy-saving designs, and the potential for shelter relocation underscore a commitment to environmental responsibility and long-term cost savings.
10-Year Warranty
Your confidence in our product’s durability and performance is secured, by a 10-Year Warranty on the double truss frame and UV, 900GSM PVC cover providing complete peace of mind.
Specifications
Frame
This Double Truss Container Dome Shelter features a tough, robust steel frame with roof support posts, additional roof purlins, bracing purlins and wire bracing and a welded base plate design. Crafted from high-quality, hot-dip galvanized steel, the structural frame offers exceptional strength and corrosion resistance, ensuring long-lasting durability. Engineered to meet stringent Australian standards, this frame provides structural integrity that can endure heavy winds and challenging environments. With its sturdy construction, you can trust that our container dome shelter frames are built to last, offering both peace of mind and unbeatable protection for your valuable assets
900GSM, Super-Tough PVC Fabric Cover
Our industrial-grade fabric boasts an impressive 900GSM thickness, crafted from durable 3-Ply PVC material. This fabric offers a host of essential qualities, making it waterproof to safeguard against moisture, UV-resistance to withstand harsh sunlight and fire-resistant for added safety. Its formidable construction ensures superior protection and longevity, making it an ideal choice for various applications across multiple industries
Installation Guide Summary
To ensure precise and correct setup, a comprehensive and detailed installation and assembly guide is included.
Our Warranty – Your Peace of Mind
At Quality Domes Direct, we want you to be completely satisfied and assured you’ve made the right decision to purchase one of our shelters. That’s why we proudly and confidently offer a 10-Year Warranty on our robust double trussed frame and a 10-Year Warranty on the resilient PVC roof cover.
We stand by the quality and durability of our products, ensuring that your investment is remains solid for years to come.
Your trust in our products is the cornerstone of our success, and we are dedicated to delivering excellence every step of the way.



















Reviews
There are no reviews yet.